от 30 апреля 2021
ПОСТАНОВЛЕНИЕ от 23.04.2021г. № 13-па с.Сарыбалык
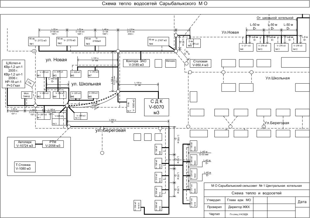
«Об утверждении актуализированной схемы теплоснабжения, водоснабжения на территории муниципального образования Сарыбалыкского сельсовета Здвинского района Новосибирской области на 2022 год»